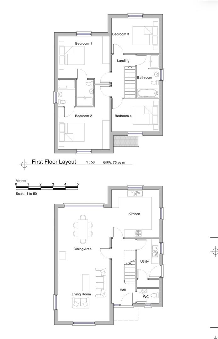
Bedrooms 4
Bath/Shower rooms 1
Receptions 1

Contact Christophers Helston

01326 565566

St Aubyns Square, Breage

PRICE GUIDE £160,000.00

  • BUILDING PLOT WITH CONSENT FOR A FOUR BEDROOM DETACHED DWELLING
  • WATER AND ELECTRICITY CONNECTED
  • FOUNDATIONS HAVE BEEN LAID AND INSPECTED
  • SUPERB OPPORTUNITY FOR EITHER A SELF BUILD CLIENT OR SMALL DEVELOPER
  • LOCATED AT THE HEART OF THIS HUGELY SOUGHT AFTER VILLAGE

A rare opportunity to purchase a building plot with planning permission for a superb four bedroom, detached executive residence in the heart of the much sought after village of Breage.

Breage itself is a wonderful village with a super local community and a great range of facilities and amenities including a Public House, Social Club, Church, Village Hall, Post Office with a shop, Play Park, as well as a Primary School. Breage is nestled within the heart of the beautiful Cornish countryside and surrounded by farmland, woods and nearby National Trust Estate home to Godolphin House, with many countryside walks including Godolphin Hill and Tregonning Hill both having stunning panoramic views over South West Cornwall. Conveniently situated for the towns of Helston and Penzance as well as the popular fishing village of Porthleven with its fantastic array of restaurants. There is good access to the nearby beaches on both the North and South Coast.

This fantastic opportunity would suit both a self build client seeking to create a stunning home for themselves or equally a small developer client. Works have commenced and initial works have been inspected making the planning extant.

Further details can be found at the Cornwall Planning Portal at https://planning.cornwall.gov.uk/online-applications/ and using reference PA21/12480.

LOCATION
Breage is a superb village with a real feeling of community and offering a great range of day to day facilities and amenities. These include a Public House, Social Club, Church, Village Hall, Post Office with a shop, Play Park, as well as a Primary School. Breage is nestled within the heart of the beautiful Cornish countryside and is surrounded by farmland, woods and a nearby National Trust Estate home to Godolphin House, with many countryside walks including Godolphin Hill and Tregonning Hill both having stunning panoramic views over South West Cornwall. Also conveniently situated for the wider facilities on offer in the large towns of Helston and Penzance as well as the popular fishing village of Porthleven with its fantastic array of restaurants. There is good access to the stunning beaches on both the North and South Coasts.

SERVICES
The seller informs us that power and water are connected on site. The purchaser will be required to install private drainage.

AGENTS NOTE
Construction has been started and the foundations have been inspected and approved by building control making the planning extant. The property shares a driveway with the neighbouring property Number 1 St Breaca View which has been completed.

AGENTS NOTE TWO
Community Infastructure Levy is payable at £16,745.28. This is not applicable to self build clients.

CONSERVATION AREA
We understand this property is located in a conservation area. For details of conservation areas visit Cornwall Mapping and use the Council's interactive map.

DISCLAIMER

IMPORTANT AGENTS NOTES: Christophers Estate Agents for themselves and the vendors or lessors of this property confirm that these particulars are set out as a general guide only and do not form part of any offer or contract. Fixtures, fittings, appliances and services have not been tested by ourselves and no person in the employment of Christophers Estate Agents has any authority to give or make representation or warranty whatsoever in relation to the property. All descriptions, dimensions, distances and orientation are approximate. They are not suitable for purposes that require precise measurement. Nothing in these particulars shall be taken as implying that any necessary building regulations, planning or other consents have been obtained. Where it is stated in the details that the property may be suitable for another use it must be assumed that this use would require planning consent. The photographs show only certain parts and aspects of the property which may have changed since they were taken. It should not be assumed that the property remains exactly the same. Intending purchasers should satisfy themselves by personal inspection or otherwise of the correctness of each of the statements which are given in good faith but are not to be relied upon as statements of fact. If double glazing is mentioned in these details purchasers must satisfy themselves as to the amount of double glazed units in the property. The property location picture is supplied by a third party and we would respectfully point out that although they are regularly updated the area surrounding the property or the property itself may have changed since the picture was taken.

What's My House Worth?

FREE & Confidential market appraisal for selling purposes

I would like you to contact me to arrange a free, no obligation, market appraisal for selling purposes.