Bedrooms 4
Bath/Shower rooms 3
Receptions 3

Contact Christophers Helston

01326 565566

Pendeen Road, Porthleven

PRICE GUIDE £895,000.00

  • DETACHED FORMER VICARAGE
  • FOUR BEDROOMS
  • EXTENSIVELY RENOVATED
  • FAR REACHING SEA & VILLAGE VIEWS
  • ADDITIONAL ONE BEDROOM ANNEXE
  • GENEROUS GARDENS & SUMMER HOUSE
  • GARAGE
  • FREEHOLD
  • COUNCIL TAX BAND E
  • EPC - D62

Situated in the heart of this increasingly sought-after Cornish fishing village is this beautifully presented four-bedroom detached former vicarage. A substantial and imposing residence full of character, the property has undergone extensive and sympathetic renovation in recent years, resulting in a wonderful home that blends charming period features with the refinements of modern living.

Warmed by oil-fired central heating, the property enjoys far-reaching views over the village, taking in the Bickford Institute clock tower, the pier and extending out to sea. At the rear of the main residence is a delightful one-bedroom annexe, currently operating as a successful holiday let. Alternatively, for those seeking a home office or studio, this versatile space could provide the ideal setting for achieving a perfect work–life balance.

The grounds are a real feature of the property, with generous gardens—mainly laid to lawn—surrounding and framing the home with a variety of well-established plants and shrubs. The garden also includes a charming summer house set on a raised deck, offering a pleasant spot to relax or entertain, while to the rear there is a good-sized garage complete with inspection pit. We have been advised by the vendors that a quotation has been obtained for providing parking in the front garden, further details available on request.

Porthleven is a thriving and picturesque Cornish fishing village, centred around its historic harbour which provides a natural focal point. Clustered around the harbour are a variety of pubs, restaurants, cafés and independent shops, giving the village a lively year-round atmosphere. Local amenities cater for everyday needs and include a primary school with nursery, while the nearby market town of Helston—just a few miles away—offers a wider range of facilities including national retailers, a cinema, comprehensive school with sixth form college, supermarkets and a sports centre with indoor swimming pool.

Between Porthleven and Helston lies the stunning Penrose Estate, owned by the National Trust. This beautiful area offers an abundance of scenic walks and trails through rolling countryside and ancient woodland, surrounding Loe Pool—Cornwall’s largest natural freshwater lake. Porthleven also has a strong sense of community and tradition, perhaps best illustrated by its award-winning brass band, whose summer performances around the harbour often fill the evening air with music, creating a unique and memorable atmosphere for residents and visitors alike.

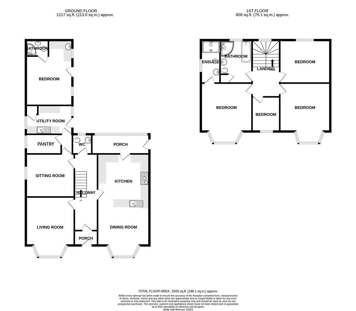
THE ACCOMMODATION COMPRISES (DIMENSIONS APPROX)
STEPS UP TO
ENTRANCE VESTIBULE
With decorative tiled floor, step up and door with stained glass window surround to

HALL
Having a Parquet wood floor, stairs with ornate wood cut balustrade to the first floor and under stairs cupboard, door to the snug, w.c., kitchen/diner and door to

LOUNGE
3.96m x 3.73m (plus bay) (13' x 12'3" (plus bay))
With outlook over the front garden, village, towards open countryside and out to sea. A feature fireplace acts as a focal point for the room and houses a wood burner with hearth, surround and mantel over. The room has Parquet flooring.

KITCHEN/DINER
7.24m x 4.04m (narrowing to 3.89m) (plus bay) (23'
A superb and spacious open-plan kitchen/dining room, perfect for modern family living and entertaining. The kitchen area is fitted with a stylish and contemporary range of units complemented by attractive granite work surfaces incorporating an inset one-and-a-half bowl sink with mixer tap, with cupboards and drawers below. There is a built-in dishwasher, space for a Rangemaster-style cooker, and an American-style fridge/freezer. The room is beautifully finished with parquet flooring, and LED spotlighting provides a warm and inviting atmosphere. A door leads from the kitchen area to the potting room.

The dining area is equally impressive, featuring a charming fireplace with hearth, surround and mantel (open fire not currently in working order) which forms an elegant focal point to the room. A large bay window enjoys delightful views over the garden and village, stretching across open countryside and out to sea. Door to…

POTTING ROOM
With a tiled floor, an outlook over the rear garden and a door to the outside.

W.C.
Comprising a close coupled w.c., pedestal wash basin with a mixer tap, towel rail, tiled floor and an obscured window to the rear.

SNUG
3.81m x 3.35m (narrowing to 3.05m) (12'6" x 11' (n
With an outlook to the side, alcove shelving and built in cupboards. Door to

UTILITY ROOM
3.58m x 2.21m (not including the walkway) (11'9" x
A dual aspect room comprising working top surfaces incorporating a sink unit with drainer and mixer tap over, cupboards and drawers under. There is space for a washing machine, tumble dryer and a built in cupboard houses a water tank with immersion heater. The room has spotlighting and access to the loft space. Door to the outside and door to

STORAGE ROOM
2.67m x 1.52m (8'9" x 5')
With an outlook to the side and having built in shelving.

STAIRS AND LANDING
Stairs with beautifully crafted wood balustrade ascend to the half landing with stained glass window and then on further to the first floor landing. There are doors to all bedrooms and door to

BATHROOM
A well-appointed suite comprising a panelled bath with mixer tap, separate shower cubicle, wall-mounted wash basin with mixer tap, and close-coupled WC. Additional features include a heated towel rail, tiled flooring, LED spotlighting and an obscure-glazed window to the rear. There is also a built-in airing cupboard providing useful storage.

BEDROOM ONE
3.96m x 3.73m (plus bay) (13' x 12'3" (plus bay))
With outlook over the village, open countryside, out to sea, Bickford Smith Institute clock tower and pier. There are an array of Sharps built in wardrobes and a door to

ENSUITE
Comprising a shower cubicle, wall mounted wash basin with mixer tap over and a close coupled w.c. with a concealed cistern. There is a window to the side, LED spotlighting and a heated towel rail.

BEDROOM TWO
4.11m x 3.73m (plus bay) (13'6" x 12'3" (plus bay)
With feature fireplace, surround and mantel over (not in working order). Enjoying similar far reaching views to bedroom one.

BEDROOM THREE
3.96m x 3.28m (plus bay) (13' x 10'9" (plus bay))
With outlook to the rear garden.

BEDROOM FOUR
2.67m x 2.13m (8'9" x 7')
With outlook to the front aspect.

THE ANNEXE
A beautifully presented, one bedroom studio style annexe which is currently run as a successful holiday let and could also be suitable for an independent relative.

LOUNGE/KITCHEN/DINER
4.80m narrowing to 3.51m x 3.51m (15'9" narrowing
An open plan room with vaulted beamed ceiling, spotlighting, skylight, outlook to the rear garden and a feature fireplace (not in working order). A kitchen area comprises working top surfaces incorporating a circular sink with mixer tap over, cupboards and drawers under. Door to

SHOWER ROOM
Comprising a shower cubicle, wall mounted wash basin with mixer tap over and cupboard under and a close coupled w.c.. There is a towel rail, partially tiled walls, spotlighting and a skylight.

OUTSIDE
The outside space is a real feature of the property, with generous gardens that cradle the main residence. Mainly laid to lawn, they are attractively stocked with a variety of well-established plants and shrubs. To the rear of the property there is also a useful garden shed.

GARAGE
8.23m x 3.05m (irregular shape room - max measurem
Having an electric roll up door, power, lighting and an inspection pit.

SUMMER HOUSE
3.73m x 2.74m (12'3" x 9')
A charming summer house with French doors opening onto a generous size decked area which would seem ideal for al fresco dining and entertaining.

AGENTS NOTE ONE
We are advised there is an overage clause on the property with further details available on request.

AGENTS NOTE TWO
We are advised there is a vehicular and pedestrian right of way in favour of The Vicarage over a neighbour's driveway to access the garage.

AGENTS NOTE THREE
Pendeen Road is an un-adopted road.

AGENTS NOTE FOUR
We have been advised by the vendors that a quotation has been obtained for providing parking in the front garden, details available on request.

SERVICES
Mains electricity, water and drainage.

COUNCIL TAX BAND
Band E

ANTI MONEY LAUNDERING REGULATIONS - PURCHASER
We are required by law to ask all purchasers for verified ID prior to instructing a sale.

PROOF OF FUNDS - PURCHASERS
Prior to agreeing a sale, we will require proof of financial ability to purchase which will include an agreement in principle for a mortgage and/or proof of cash funds.

DATE DETAILS PREPARED
1st November 2023

DISCLAIMER

IMPORTANT AGENTS NOTES: Christophers Estate Agents for themselves and the vendors or lessors of this property confirm that these particulars are set out as a general guide only and do not form part of any offer or contract. Fixtures, fittings, appliances and services have not been tested by ourselves and no person in the employment of Christophers Estate Agents has any authority to give or make representation or warranty whatsoever in relation to the property. All descriptions, dimensions, distances and orientation are approximate. They are not suitable for purposes that require precise measurement. Nothing in these particulars shall be taken as implying that any necessary building regulations, planning or other consents have been obtained. Where it is stated in the details that the property may be suitable for another use it must be assumed that this use would require planning consent. The photographs show only certain parts and aspects of the property which may have changed since they were taken. It should not be assumed that the property remains exactly the same. Intending purchasers should satisfy themselves by personal inspection or otherwise of the correctness of each of the statements which are given in good faith but are not to be relied upon as statements of fact. If double glazing is mentioned in these details purchasers must satisfy themselves as to the amount of double glazed units in the property. The property location picture is supplied by a third party and we would respectfully point out that although they are regularly updated the area surrounding the property or the property itself may have changed since the picture was taken.

What's My House Worth?

FREE & Confidential market appraisal for selling purposes

I would like you to contact me to arrange a free, no obligation, market appraisal for selling purposes.