Bedrooms 4
Bath/Shower rooms 2
Receptions 1

Contact Christophers Helston

01326 565566

Hellis Wartha, Helston

PRICE GUIDE £450,000.00

  • SUPERBLY SPACIOUS FOUR BEDROOM FAMILY HOME
  • DUAL ASPECT LOUNGE WITH LOG BURNER
  • LARGE KITCHEN DINING ROOM WITH DIRECT ACCESS TO THE GARDEN
  • INTEGRAL GARAGE
  • ENCLOSED LEVEL LAWNED GARDEN
  • CONVENIENT AND POPULAR LOCATION
  • WELL MAINTAINED WITH SCOPE TO PUT YOUR OWN STAMP AND CREATE YOUR OWN FOREVER HOME
  • EPC C79
  • COUNCIL TAX D
  • FREEHOLD

This detached four bedroom house offers exceptional space and versatility, the kind of layout that simply works for family life. From the moment you step inside, the generous and welcoming hallway sets the tone, with an immediate sense of light and flow.

Glazed oak effect double doors open into a superb dual aspect lounge, a room that feels both spacious and inviting. The bay window to the front draws in natural light, while the contemporary log burner creates a stylish focal point and the perfect setting for cosy winter evenings and relaxed family time. A further set of glazed oak effect doors leads through to the dining area, seamlessly connecting the reception space with the heart of the home.

The kitchen dining room is impressive in both size and design. Fitted with a contemporary range of units and integrated appliances, it features a central island that provides additional seating and storage, ideal for busy mornings or sociable gatherings. Overlooking the rear garden, this room enjoys direct access outside and also links conveniently to the integral garage.

Upstairs, the feeling of space continues with four well proportioned bedrooms. The master bedroom is particularly generous, benefiting from extensive built in storage and a generous en suite shower room. The remaining bedrooms are all of good size, served by a family bathroom.

Outside, to the front, a low maintenance area provides for additional parking, alongside a driveway leading to the garage, which benefits from an electric remote door and incorporates a practical utility area. The rear garden is level, lawned and fully enclosed, planted with mature trees and shrubs along with a variety of young fruit trees, creating a secure and family friendly environment.

Spacious, well maintained and full of potential, this is a wonderful modern family home that offers the opportunity to settle in and, over time, shape it into a forever home tailored exactly to your own style and needs.

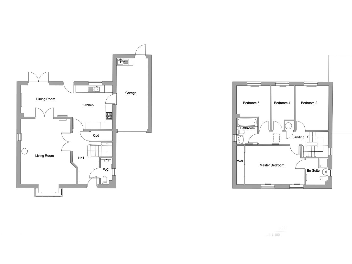
THE ACCOMMODATION COMPRISES (DIMENSIONS APPROX)
DOOR TO
ENRANCE HALLWAY
A lovely spacious and welcoming hallway with useful storage cupboard with light, turning staircase rising to the first floor and doors to various rooms.

CLOAKROOM
2.18m x 0.97m (7'2" x 3'2")
With low level W.C., wall mounted wash hand basin, radiator, obscured window to the side.

LOUNGE
6.55m (max in bay window) x 4.14m (21'6" (max in b
A lovely spacious room accessed via glazed oak effect double doors from the hallway and connecting to the dining area by another pair of glazed oak doors. Being dual aspect with a bay window to front and window to side, stylish log burner set on slate hearth providing a lovely focal point and warmth in the winter months, two radiators, ceiling light and two wall lights.

KITCHEN/DINING ROOM
8.08m x 3.73m (maximum reducing to 2.62m minimum)
A wonderful spacious room perfect for busy family life or those that love to entertain.

KITCHEN AREA
fitted with a comprehensive range of contemporary base and wall units including deep pan drawers with roll top work surfaces over with one and a half bowl stainless steel sink and drainer with mixer tap, integrated appliances to include eye level Bosch oven and grill, microwave, gas hob with stainless steel splashbacks, filter and light above, integrated fridge/freezer. Free standing island unit providing for additional storage and work surface space as well as a seating area, door to garage, window to rear overlooking the garden and a open plan to

DINING AREA
with two radiators, exterior door and patio doors accessing the rear garden offering plenty of space to dine. Oak glazed double doors connecting to the lounge.

FIRST FLOOR
LANDING
With radiator, loft access, airing cupboard and doors to various rooms.

MASTER BEDROOM
4.98m x 3.23m (16'4" x 10'7" )
A wonderfully spacious master bedroom providing for a relaxing retreat at the end of a busy day with two windows to the front, two radiators, generous built-in storage and door to

EN SUITE SHOWER ROOM
2.21m x 1.85m (7'3" x 6'1")
A spacious en suite with a tiled cubicle housing the chrome effect domestic hot water shower, pedestal wash hand basin, low level W.C., ladder style radiator, obscure window to side and extractor.

BEDROOM TWO
3.71m x 2.77m (12'2" x 9'1")
With window to rear offering a lovely open outlook with rural views across surrounding property. Radiator.

BEDROOM THREE
2.79m x 2.57m (minimum measurement) (9'2" x 8'5" (
With radiator and window to rear again offering an attractive outlook.

BEDROOM FOUR
2.84m x 1.91m (9'4" x 6'3")
With radiator and window to rear again offering an attractive rural outlook across surrounding property.

FAMILY BATHROOM
2.18m x 1.70m (7'2" x 5'7")
Suite comprising of a bath with tiled surround and feature wall mounted mirror with lights above, low level W.C., pedestal wash hand basin, obscured window to side and radiator.

OUTSIDE
To the front of the property is a low maintenance paved area providing for additional parking. To the side of the property is a driveway leading to

GARAGE
5.89m x 2.62m (19'4" x 8'7")
With remote electric roller door, pedestrian access door to rear accessing the garden, a utility area with base unit with work surfaces over, stainless steel sink drainer, space and plumbing for washing machine, space and point for condenser tumble dryer and wall mounted Glowworm boiler, pedestrian door to the kitchen, power and light.

GARDENS
The gardens lie mainly to rear of the property they are predominantly laid to lawn and level with a patio accessed from the dining area, they are planted with mature shrubs and trees and a variety of young fruit trees. The garden is fully enclosed by walling and fencing providing a good degree of privacy and a safe environment for children and pets. There is a gated pedestrian access path to the side of the property leading to the front. There are useful external power points and an outside tap.

SERVICES
Mains water, electricity, drainage and gas central heating.

WHAT3WORDS
homelands.officers.closer

ANTI-MONEY LAUNDERING
We are required by law to ask all purchasers for verified ID prior to instructing a sale

COUNCIL TAX
Council Tax Band D.

DATE DETAILS PREPARED.
4th March 2026.

MOBILE AND BROADBAND
To check the broadband coverage for this property please visit -
https://www.openreach.com/fibre-broadband
To check the mobile phone coverage please visit -
https://checker.ofcom.org.uk/

PROOF OF FINANCE - PURCHASERS
Prior to agreeing a sale, we will require proof of financial ability to purchase which will include an agreement in principle for a mortgage and/or proof of cash funds.

DISCLAIMER

IMPORTANT AGENTS NOTES: Christophers Estate Agents for themselves and the vendors or lessors of this property confirm that these particulars are set out as a general guide only and do not form part of any offer or contract. Fixtures, fittings, appliances and services have not been tested by ourselves and no person in the employment of Christophers Estate Agents has any authority to give or make representation or warranty whatsoever in relation to the property. All descriptions, dimensions, distances and orientation are approximate. They are not suitable for purposes that require precise measurement. Nothing in these particulars shall be taken as implying that any necessary building regulations, planning or other consents have been obtained. Where it is stated in the details that the property may be suitable for another use it must be assumed that this use would require planning consent. The photographs show only certain parts and aspects of the property which may have changed since they were taken. It should not be assumed that the property remains exactly the same. Intending purchasers should satisfy themselves by personal inspection or otherwise of the correctness of each of the statements which are given in good faith but are not to be relied upon as statements of fact. If double glazing is mentioned in these details purchasers must satisfy themselves as to the amount of double glazed units in the property. The property location picture is supplied by a third party and we would respectfully point out that although they are regularly updated the area surrounding the property or the property itself may have changed since the picture was taken.

What's My House Worth?

FREE & Confidential market appraisal for selling purposes

I would like you to contact me to arrange a free, no obligation, market appraisal for selling purposes.